
Lang huis
Een riante bouwkavel midden in een bestaande woonwijk in Tolbert werd de prooi voor een gezin uit dezelfde plaats om daar een duurzaam, toekomstbestendig droomhuis te realiseren. De betrekkelijk brede kavel leende zich uitstekend voor een eigenwijze invulling. Het 23 meter lange ‘longhouse’ schermt zo direct het achtererf af van de straatzijde. Die straatzijde is gesloten, alleen ter plekke van de keuken verraadt zich iets van de levendigheid binnen. Aan de tuinzijde is de woonruimte door een overstek verbonden met de zonnige tuin.
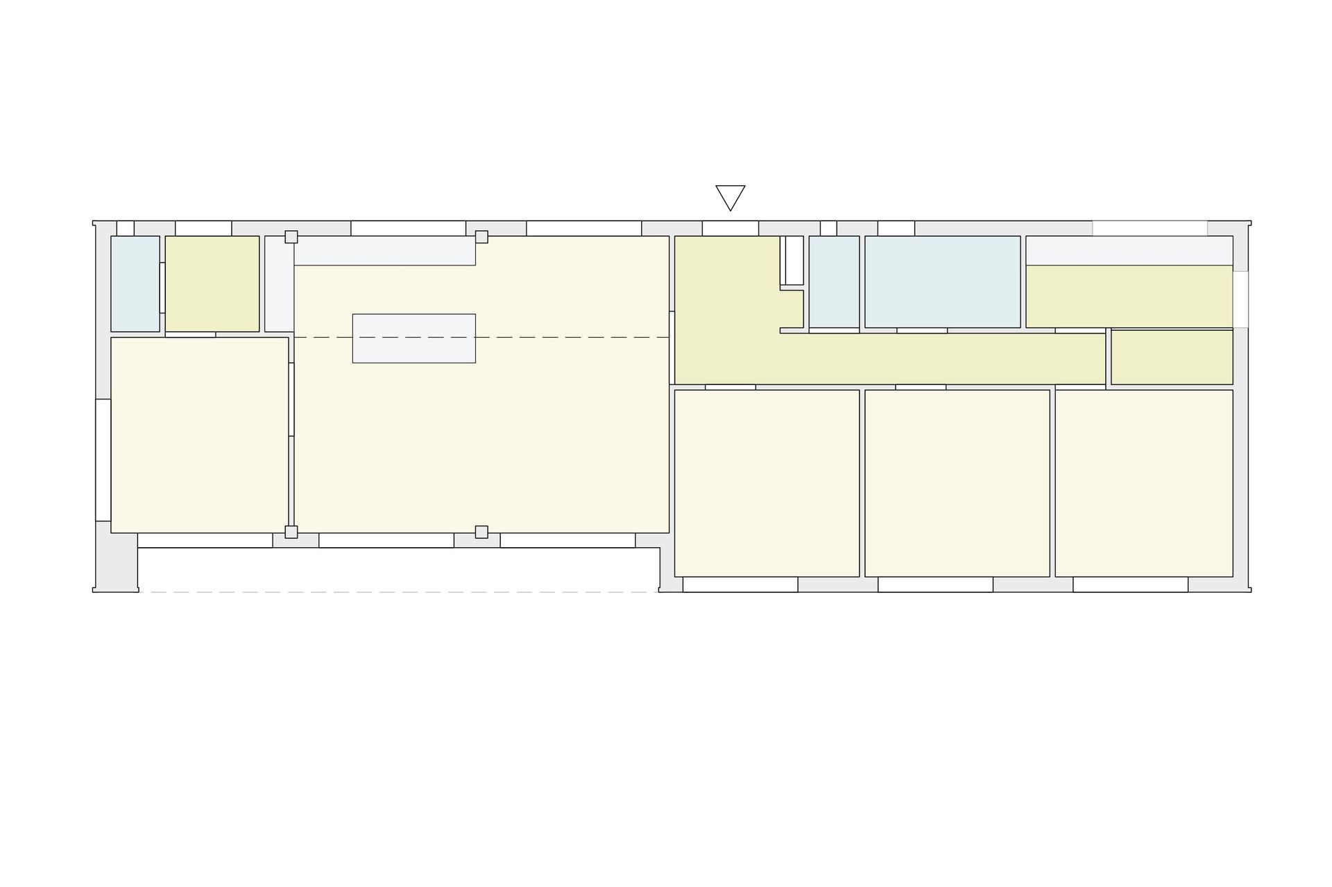
De woonruimte bestaat uit een zithoek, keuken en werkgedeelte. Deze woonruimte beslaat de helft van het volume. De andere helft wordt gevormd door drie slaapkamers aan de tuinzijde en een toilet, badkamer en bijkeuken/achteringang aan de straatzijde.
De woning is opgebouwd uit een houtskelet-systeem met toepassing van drie houten spanten ter plekke van de woonruimte. Aan de buitenzijde op het dak en de langsgevels bekleed met een gecoate felsbeplating van staal. De kopgevels zijn bekleed met een halftransparant gebeitst rhombusprofiel.
fotografie door Jan Duker















