
(T)huismerk
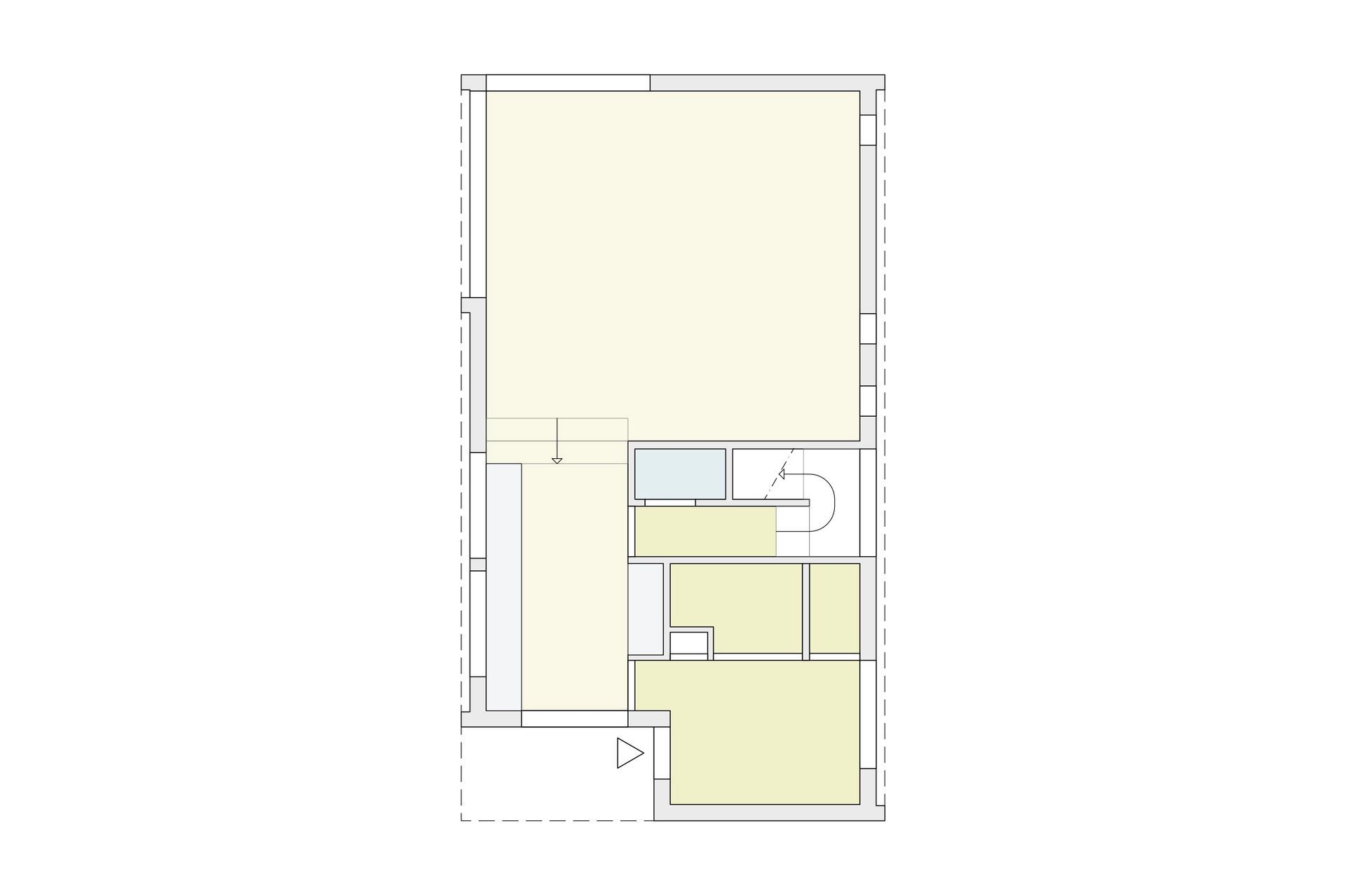
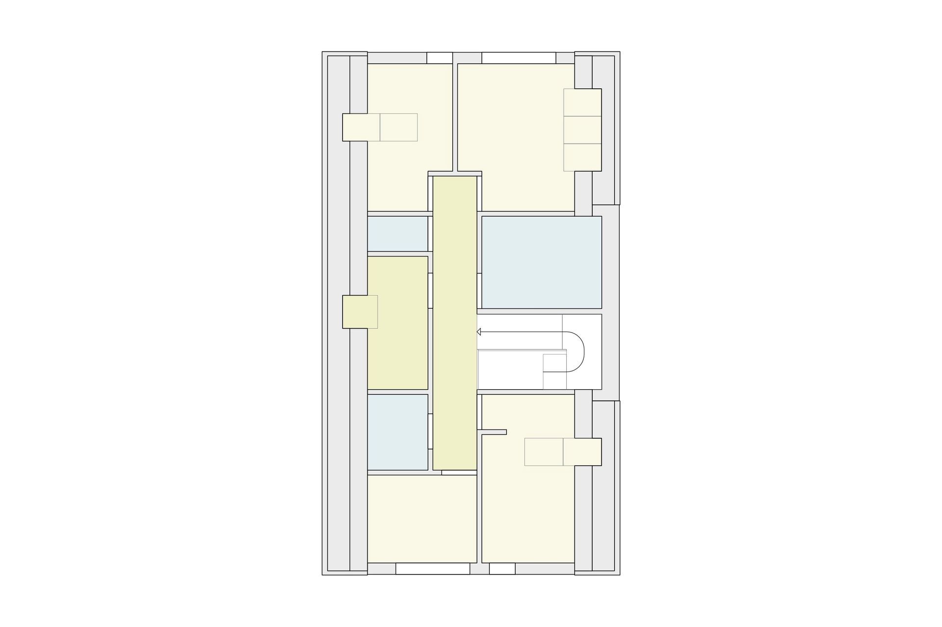
De opgave voor dit woonhuis kende twee belangrijke uitdagingen, het moest namelijk een uniek huis worden met ruimtelijke verrassing én het moest zich optimaal voegen naar de locatie (met z’n voor- en nadelen). Die locatie is mooi - aan het water - maar ook direct aan de toegangsweg over het schiereiland. De plaatsing van de woning zou de tuin de noodzakelijke privacy moeten geven. Maar ook zou het mooi zijn dat op de verdieping er juist oriëntatie is op die (straat)zijde met het mooiste uitzicht over het Woldmeer. En dan zou het ook nog fijn zijn om ieder moment van de dag de zon (en het licht) te ervaren.
De fijne samenwerking met de initiatiefnemers heeft geleid tot een fijn en licht huis met wat eigenzinnige ingrepen die in de verdere uitwerking van het interieur en de styling nog beter tot hun recht komen. Van begin tot eind waren de bewoners vastberaden dit ‘zelfbouwkavel’ ook letterlijk zelf te bebouwen en tot in de puntjes af te werken. Met de inzet van enkele onderaannemers hebben ze de daad bij het woord gevoegd en er werkelijk een geslaagd thuis van gemaakt met geheel eigen stijl en uitstraling. Het exterieur is sober en verfijnd tegelijk, het interieur uitgesproken en warm. De liefde en aandacht (voor het detail) verbinden binnen en buiten. Deze bewoners vieren het leven en het huis feest mee!
fotografie door Jan Duker















