
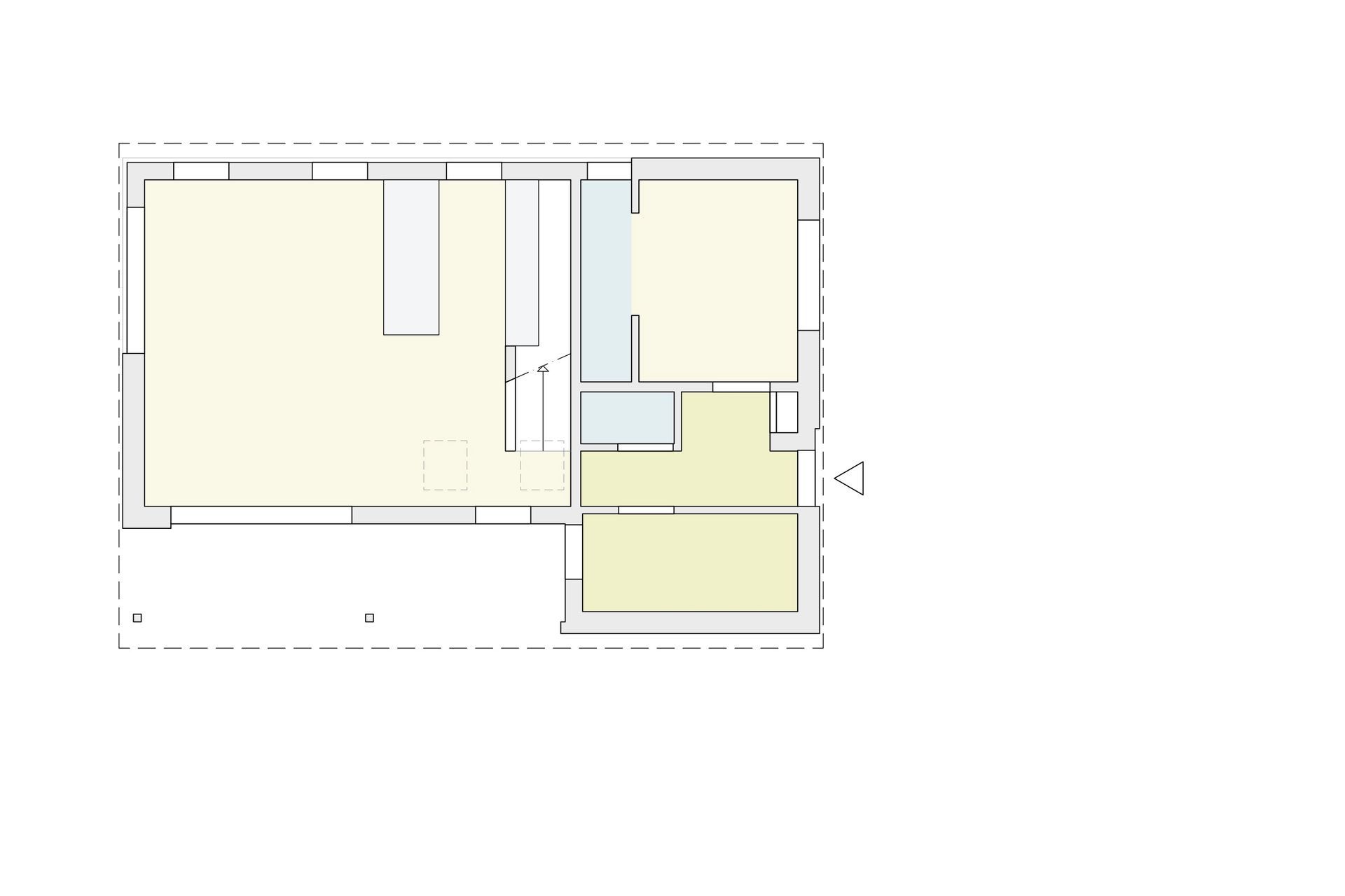
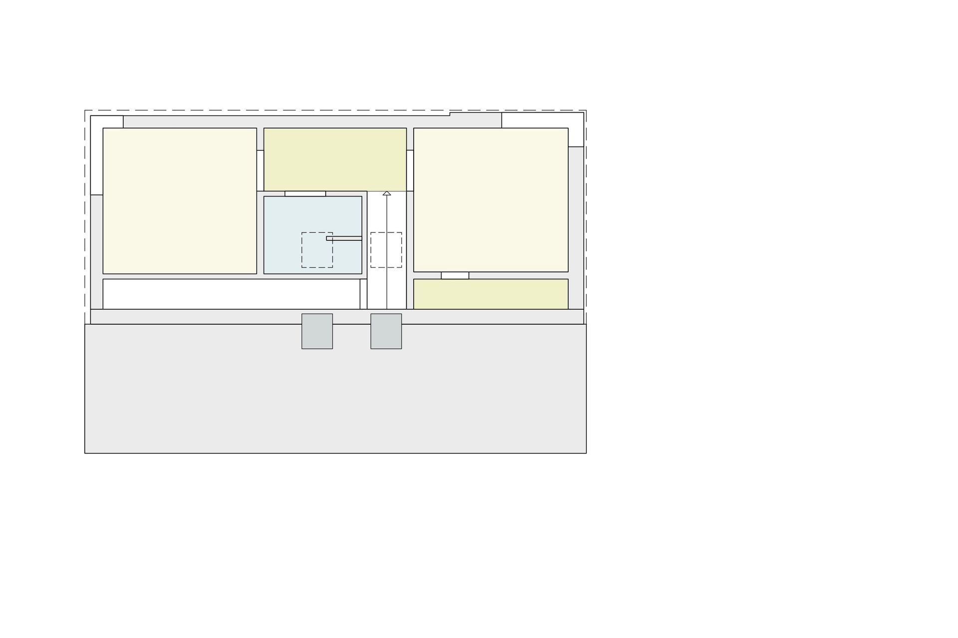
Compact en ruimtelijk
Met groot plezier heeft burovanplan gewerkt aan de realisatie van dit compacte, maar ruimtelijk ontworpen woonhuis. Het kavel in een uitbreidingswijk van Winsum (Groningen) is betrekkelijk smal en diep terwijl de inrit van de woning zich bevindt aan de zonnige zijde van het erf. De wensen van het gezin waren bescheiden met een prettige ‘genoeg is genoeg’-houding. Optimaal gebruik maken van een beperkt volume, met de juiste oriëntatie op zon en licht en voldoende privacy naar de straat waren de belangrijkste uitgangspunten. Een ruimtelijke - op de tuin gerichte - woonkamer, met natuurlijke uitstraling is het hart van het huis. Daar omheen zijn slaapvertrekken als privé-zones voor de gezinsleden gelegd.
Het woonhuis is gerealiseerd middels een houtskelet-pakket, aan de buitenzijde deels voorzien van een gemetseld buitenblad, deels van een zwarte houten gevelbekleding van plankprofielen. De geïntegreerde veranda verbindt binnen en buiten. De sfeer van het interieur, met de warmte van onbehandeld hout versterkt due verbinding.
fotografie door Jan Duker
















